6畳の部屋に引っ越す予定があったり、今の部屋を見直そうとしたとき、「縦長だからレイアウトが難しい」「女子部屋としておしゃれにしたいけれど失敗しそう」と感じて、このキーワードで検索したのではないでしょうか。家具のサイズや置き方ひとつで、狭くも広くも見えてしまうのが6畳という空間です。
SNSやインテリア記事を見ると、同じ6畳でもすっきり見える部屋と、なぜか窮屈に感じる部屋があります。その違いが分からないまま真似をすると、「思っていたのと違う」「生活しにくい」と後悔につながることも少なくありません。特に縦長の間取りは、横幅や動線、視線の通り方まで考える必要があります。
6畳レイアウト女子縦長というテーマで大切なのは、正解の配置を探すことよりも、「どう考えて決めるか」という判断基準を持つことです。部屋の形や生活スタイルによって、合う配置は変わりますが、失敗しやすいポイントや共通する考え方はあります。
この記事では、なぜ縦長6畳が難しく感じやすいのか、どんな配置が狭さやダサさにつながりやすいのかを整理しながら、後悔しにくい考え方を順を追って解説していきます。読み進めることで、自分の部屋に当てはめて判断できるようになるはずです。
※この記事はプロモーションを含みます。
6畳レイアウト女子縦長はなぜ難しいのか
- 6畳の部屋は必ず縦長ではないが賃貸では縦長が多い
- 縦長6畳は玄関から窓まで一直線で奥行きが強調されやすい
- 視線と動線が直線化しやすく圧迫感を感じやすい
- 横幅不足により家具サイズの選択肢が限られやすい
- 家具の高さが視界を遮ると体感的な狭さが増す
- ワンルームは生活感が視界に入りやすく隠す工夫が要る
- 1Kは扉やクローゼットの干渉確認が重要である
- 間取りの特性を理解しないと狭さを助長する配置になりやすい
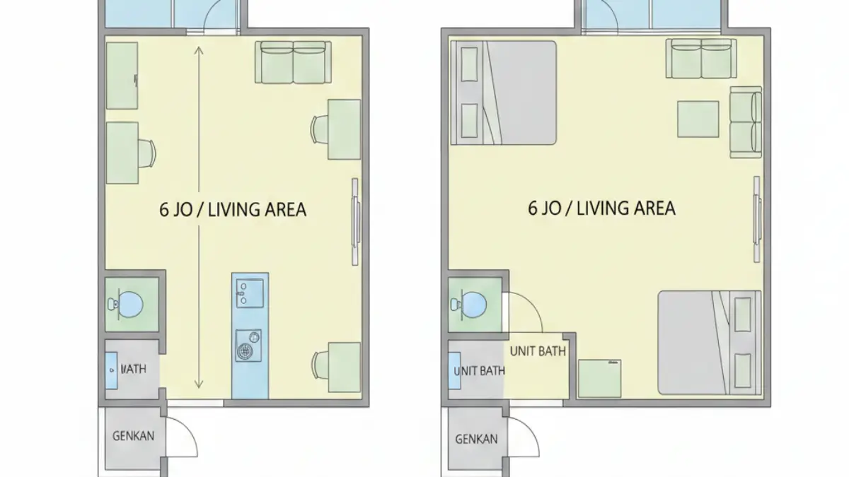
6畳の部屋は本当に縦長なのか
6畳の部屋は「必ず縦長」というわけではありませんが、実際の賃貸では縦長になる割合が高いです。これは多くの人が感じている違和感でもあり、6畳レイアウト女子縦長という検索が生まれる背景でもあります。
理由として、都市部のワンルームや1Kでは、玄関から窓までを一直線でつなぐ間取りが採用されやすく、結果的に奥行きが強調される設計になりがちです。建物全体の効率や配管位置の都合も関係しています。

実際に横幅より奥行きが長い6畳では、同じ面積でも「狭い」「圧迫感がある」と感じやすくなります。反対に、横長の6畳は家具配置の自由度が高く、視線も分散しやすいため、体感的に広く感じるケースが多いです。
ただし、すべての6畳が同じではありません。数値上は6畳でも、柱や梁、収納の位置で使える面積は変わります。まずは自分の部屋が縦長かどうかを把握することが、失敗しないレイアウトの第一歩です。
6畳が縦長になりやすい間取りの理由
賃貸住宅では、玄関・キッチン・居室・窓を一直線に配置する方が設計効率が良く、結果として縦に細長い6畳が増えやすくなります。特に単身向け物件で顕著です。
横長になる6畳との違い
横長の6畳は窓面が広く、家具を横方向に配置しやすいのが特徴です。一方、縦長は奥行きが強調され、配置の工夫をしないと圧迫感が出やすくなります。
6畳縦長が狭く感じる構造的特徴
6畳縦長が狭く感じやすい最大の理由は、視線と動線が一直線になりやすい点です。空間の変化が少なく、奥行きだけが強調されるため、実際の広さ以上に窮屈に感じます。
縦長レイアウトでは、入口からベッドや窓まで一気に見通せてしまいます。そのため家具が視界を遮ると、圧迫感が一気に増します。特に高さのある家具は影響が大きいです。
また、家具配置の選択肢が限られるのも特徴です。横幅が足りないため、置ける家具サイズがシビアになり、少しの判断ミスで通路が確保できなくなります。これが「狭い」と感じる体験につながります。
ただし、構造を理解した上で配置を決めれば、縦長でも快適に使えます。狭さは間取りそのものよりも、使い方の影響が大きい点を押さえておくことが重要です。
動線が一直線で圧迫感が出る
玄関から窓まで一直線の動線は便利な反面、家具がその線上に並ぶことで視覚的な圧迫を生みやすくなります。視線をずらす配置が有効です。
家具配置で失敗しやすい理由
「置けそう」で選んだ家具が実際には通路を塞ぎ、生活動線を悪くするケースが多いです。寸法確認を怠ると失敗につながります。
ワンルームと1Kの6畳縦長の違い
同じ6畳縦長でも、ワンルームと1Kではレイアウトの考え方が大きく異なります。特に生活感の出方と家具配置の自由度に差が出ます。
ワンルームではキッチンと居室が一体のため、視界に入る情報量が多くなりがちです。一方、1Kは扉で区切られる分、居室は落ち着いた空間を作りやすい傾向があります。
体験的には、ワンルーム6畳縦長は「隠す工夫」、1K6畳縦長は「干渉を避ける工夫」が重要になります。同じ家具でも、間取りによって正解が変わる点は見落とされがちです。
どちらが良い悪いではなく、自分の生活スタイルに合った対策を取ることが大切です。間取りの違いを理解することで、無理のないレイアウトが見えてきます。
ワンルーム6畳縦長の注意点
キッチンや玄関が視界に入りやすいため、収納や目隠しで生活感をコントロールする必要があります。
1K6畳縦長で起きやすい制約
ドアやクローゼットの開閉スペースが家具と干渉しやすく、配置前の動線確認が欠かせません。
6畳レイアウト女子縦長を成功させる配置と対策
- ダサ見えはセンスではなく配置ミスの積み重ねで起こりやすい
- NG例は家具過多・ベッド過大・通路不足・収納露出などである
- 床を見せる・高さを揃える・色数を絞ることが基本である
- 広く見せるには床と視線の抜けを同時に作る必要がある
- 家具は壁沿いにまとめ中央に余白を残す配置が有効である
- 通路は最低60cmを目安に確保するのが安全である
- 収納は奥行きを抑え床面を減らさない工夫が重要である
- 図面寸法だけでなく生活動作まで想定して判断する
女子部屋6畳縦長がダサくなるNG例6選
6畳縦長の女子部屋がダサく見える最大要因は、センスではなく「狭い空間でやってはいけない選択」を重ねてしまうことです。6畳レイアウト女子縦長は置き方の影響が大きく、同じ家具でも配置次第で“整って見える部屋”と“雑多に見える部屋”に分かれます。

縦長6畳は横幅が限られるため、家具の数・大きさ・高さが少しズレるだけで、通路が詰まり、視線が止まり、生活感が一気に前に出ます。かわいい雑貨や収納を足しても、土台(床の見え方・動線・色のまとまり)が整っていないと、結果は“ごちゃつき”に寄りがちです。まずは「床を見せる」「高さを揃える」「色数を絞る」の3点が基礎になります。
よくあるNGは次の6つです。①家具を置きすぎて床が消える、②ベッドが大きすぎて部屋が分断される、③通路幅を後回しにして動線が詰む、④収納が露出して生活感が出る、⑤色・素材が増えすぎて統一感が崩れる、⑥背の高い家具で視線が遮られて圧迫感が出る。ポイントは「ひとつのNGが連鎖する」ことです。たとえば収納を増やす→床が見えない→狭く見える→さらに整理しようとして収納を足す、という悪循環が起こります。
例外として、収納量がどうしても必要な人や、在宅ワークで机を優先したい人もいます。その場合でも“増やす前に整える”が鉄則です。まず家具を壁沿いに寄せ、中央に余白を残し、色と高さを揃えた上で、必要分だけ足すと失敗しにくくなります。迷ったら、追加する家具は「床が見えるか」「通路が60cm以上残るか」を基準に判断してください。
| NG例 | 起こること | 改善の一手 |
|---|---|---|
| 家具を置きすぎる | 床が見えず、雑多で狭い印象 | 家具を「使う頻度」で減らし、床面を確保 |
| ベッドが大きすぎる | 通路が消えて、部屋が分断される | まずはシングル前提で配置を組む |
| 通路幅を無視 | 歩きにくく、掃除もしづらい | 中央は通路、家具は壁沿いにまとめる |
| 収納が露出 | 生活感が前に出て“ダサ見え” | 同色ボックスで隠す・見せる場所を限定 |
| 色・素材が多い | 統一感が崩れ、散らかって見える | 白+木+差し色1つに絞る |
| 背の高い家具 | 視線が止まり、圧迫感が増す | 低い家具中心にして“抜け”を作る |
家具を置きすぎてしまうNG配置
6畳縦長で一番起きやすい失敗が「小さい家具だから大丈夫」と増やしてしまうことです。小物収納・サイドテーブル・ラックなどが積み重なると、床が見えなくなり、視覚的に“物が密集した部屋”になります。対策はシンプルで、まず床の見える面積を確保し、家具は「使う頻度が高い順」に残します。どうしても収納が必要なら、床置きを増やすより、ベッド下や壁面(突っ張り・フック)で“浮かせる収納”に寄せると、圧迫感を増やしにくいです。
ベッドサイズ選びの失敗例
ベッドは面積も高さも影響が大きく、6畳縦長の印象を決める主役です。セミダブル以上を選ぶと、通路が確保できず、クローゼット前や窓前が詰まりやすくなります。さらに、部屋の中央を横断する形でベッドが出てしまうと、空間が分断され“狭い部屋感”が強まります。基本はシングルを前提にし、どうしても広さが必要なら、フレームを細いものにする・脚付きで床を見せる・収納はベッド下に寄せる、のように「見え方」と「機能」を同時に満たす選び方が安全です。
ダサい6畳部屋に共通する特徴
ダサく見える6畳部屋は、物の量よりも「見え方のルール」が決まっていないことが原因になりやすいです。特に縦長の6畳では、視界に入る範囲が狭いぶん、少しのチグハグがそのまま“雑多感”として目立ちます。
6畳は面積に余裕がないため、家具の置き方がそのまま印象を作ります。何となく並べると、色・素材・高さがバラけて視線が落ち着かず、生活感も隠れません。逆に整って見える部屋は、①色数が少ない、②家具の高さが揃っている、③床と壁の余白が残っている、の3点が共通しています。これはセンスの差というより、狭い部屋で“見せる面”を管理できているかの差です。
判断のコツは「入口から見て、目に入る情報が多いか少ないか」です。ダサい部屋は、床に物が散り、配線や日用品が見え、パッケージの色もバラバラで、視線が次々に引っかかります。一方、整って見える部屋は、収納の“表に出る面”が揃っていて、視線が窓や壁の余白に抜けます。6畳レイアウト女子縦長を整えるなら、家具を増やすより先に「見えるものを減らす」「見える面を揃える」の順で手を入れる方が確実です。
ただし、見た目だけを優先して収納を削りすぎると、結局出しっぱなしが増えて逆効果になることもあります。片付けが苦手な人ほど、隠す収納を“少数精鋭”で用意し、使用頻度の高い物の定位置を決めるのが現実的です。飾りは最後に足しても遅くありません。
| チェック項目 | ダサく見えやすい状態 | 整って見える状態 |
|---|---|---|
| 色数 | 家具・布・小物が多色で散る | ベース2色+差し色1色に絞る |
| 高さ | 背の高い家具が入口側に並ぶ | 低い家具中心で視線が抜ける |
| 床の見え方 | 床置きが多く余白が消える | 床が見える面積を意識して残す |
| 生活感 | 配線・日用品・パッケージが丸見え | 同色ボックスで隠し、見せる場所を限定 |
統一感がなく生活感が出る原因
統一感が崩れる主な原因は「買い足しのたびに基準が変わる」ことです。たとえば、収納ケースの色が揃っていない、木目のトーンが違う、金属・プラスチック・布の質感が混在する、といった“見える面のバラつき”が生活感を強めます。対策は、部屋のベースを白・木・グレーなど2〜3要素に固定し、収納の表面(ケース・カゴ・ファイル)を同系色で揃えることです。見える面が揃うと、細かい物が多少増えても雑多に見えにくくなります。
視線と余白が意識されていない例
視線と余白がない部屋は、入口から見た瞬間に“詰まっている”印象になります。典型例は、部屋の中央にテーブルやラックがあり、窓までの視線が遮られる配置です。もう一つは、床に物が連続して置かれていて、視線が休まる場所がない状態です。余白は「空けたままにする場所」を決めると作りやすく、たとえば中央通路と窓前は基本的に塞がない、壁の一面は何も置かない、などルール化すると維持できます。6畳縦長は余白が少し増えるだけで、体感の広さと“整って見える感”が一気に上がります。
6畳の部屋を広く見せる配置の基本
6畳を広く見せるコツは、床と視線の「抜け」を同時に作ることです。縦長の部屋ほど、入口から窓までの見通しと通路幅が整うだけで体感の広さが変わります。
縦長の6畳は、家具が中央に寄ると空間が分断され、同じ面積でも「詰まって見える」状態になりがちです。逆に、家具を壁沿いに寄せて中央に余白を残すと、床が見える面積が増えて明るさも回り、圧迫感が弱まります。6畳レイアウト女子縦長を考えるなら、まず“置く場所”より先に“通す線(動線と視線)”を決めるのが近道です。

6畳の部屋づくりについては、配置の考え方だけでなく実例を確認することで判断しやすくなります。6畳女子部屋の整え方やインテリアの方向性については、おしゃれな部屋作り女子6畳の整え方も参考になります。
判断の目安は、①入口〜窓に向かって視線が途切れない、②通路は最低60cm、③奥行きの深い家具を並べない、の3つです。ベッドとデスクを縦方向にそろえる配置は奥行きが強調されやすく、棚やテーブルを部屋の真ん中に横断させると通路が細くなります。迷ったらチェック表で数値を確認し、どの家具が通路を削っているかを見つけてください。
| チェック項目 | 目安・基準 | NGになりやすい状態 | 見直しポイント |
|---|---|---|---|
| 視線の通り | 入口から窓まで視線が抜ける | 途中で棚・背の高い家具が遮る | 高さのある家具は奥側か壁沿いに寄せる |
| 通路幅 | 60cm以上を確保 | 50cm未満で歩きにくい | 家具を中央から外し通路を固定する |
| 家具の奥行き | 30〜40cm前後 | 45cm以上が連続して並ぶ | 奥行きの浅い家具に入れ替える |
| 家具の向き | 縦方向にそろえる | 部屋を横断する配置 | ベッド・机を壁と平行に配置する |
| 床の見え方 | 中央に余白が残る | 床置きが多く余白が消える | 脚付き家具や浮かせ収納を使う |
| 窓前スペース | 60cm以上空ける | 収納やベッドで塞ぐ | 光を遮らない配置に変更する |
注意したいのは、部屋の形が同じ6畳でも、梁・柱・クローゼットの位置で使える壁が変わる点です。また、窓前を塞ぐと採光が落ち、暗さが「狭さ」に直結します。例外として、在宅ワーク中心で机を優先する場合は、机を窓側に置いて明るさを取る方が快適なこともあります。その場合でも、中央の余白を守るのが基本ルールです。
ベッドとデスクの正解配置
基本は「ベッドは壁沿いに縦置き」「デスクは窓側か入口側に寄せて通路を確保」です。ベッドを縦置きにすると中央の余白が作りやすく、縦長6畳の抜けが残ります。
配置の選び方は、次の優先順位で決めると失敗が減ります。
- 光を取りたい:デスクを窓側、ベッドは側面を壁へ
- 寝る時間が長い:ベッドを奥側、デスクは入口寄りで動線確保
- 来客を意識:入口からベッドが丸見えにならない向きに寄せる
また、机の奥行きが深いほど通路を削りやすいので、作業量が多くない場合は奥行きを抑えて椅子を引いた時のスペースを確保する方が快適です。6畳レイアウト女子縦長では机の幅より奥行きが効いてきます。
視線の抜けを作るレイアウト
視線の抜けは入口から窓まで目線の高さで遮るものを減らすだけで作れます。部屋の中央に背の高い棚を置かず、低い家具を壁沿いにまとめるのが王道です。
抜けを作るための実践ポイントは次の通りです。
- 入口側に高家具を置かない:入った瞬間の圧迫感を減らす
- 床の見える面積を増やす:脚付き家具やベッド下収納で浮かせる
- 窓まわりを軽くする:カーテンは明るめ、窓前は塞がない
もし収納が足りず高家具が必要なら、入口側ではなく奥側の壁に寄せ、中央の通路を守るのが妥協点です。抜けが残るだけで、同じ家具量でも整って広い印象に寄ります。
6畳縦長の部屋づくりで失敗しないための実践的チェックポイント
6畳縦長の部屋を快適に整えるには、見た目の工夫だけでなく「事前確認」と「現実的な判断」が欠かせません。多くの失敗は、間取りや寸法を正しく把握しないまま家具を選ぶことで起きています。
特に重要なのが、部屋の正確な広さと形状を把握することです。6畳と表記されていても、柱や梁、クローゼットの位置によって使える面積は異なります。国土交通省が公表している住生活に関する基準でも、居室の有効面積や家具配置を考慮した住まい方の重要性が示されています(参考:国土交通省 住生活基本計画)。公的情報を基準に考えることで、感覚だけに頼らない判断ができます。
実際の体験として多いのは、「置けると思った家具が置けなかった」「通路が想像以上に狭くなった」というケースです。これは、図面上の寸法と生活時の動線を分けて考えていないことが原因です。たとえば、クローゼット前は扉の開閉分、デスク前は椅子を引く分の余裕が必要になります。成功している人ほど、家具サイズだけでなく使う瞬間の動きまで想定しています。
注意点として、SNSや写真のレイアウトは理想的に見えても、生活条件が違うことが多い点が挙げられます。日当たり、エアコン位置、コンセント配置などは物件ごとに異なり、同じ6畳縦長でも最適解は変わります。参考情報は活用しつつ、最後は自分の部屋の条件に照らし合わせて取捨選択することが、後悔しない部屋づくりにつながります。
狭い空間では、家具配置や空間の使い方次第で体感が大きく変わります。限られたスペースでの配置判断の考え方については、狭い部屋での配置を考える視点も参考になります。
Q&A|6畳縦長レイアウトでよくある疑問
Q. 図面では問題なさそうなのに、実際に住むと狭く感じるのはなぜ?
A. 図面は静止した寸法しか示していません。実際の生活では歩く・座る・開けるといった動作が加わり、その分の空間が必要になります。多くの人が入居後に気づくのは、椅子を引いたときや通路をすれ違うときの窮屈さです。
Q. 6畳縦長でもおしゃれに暮らしている人は何を重視していますか?
A. 共通しているのは最初から全部そろえない姿勢です。必要最低限の家具で暮らし始め、生活しながら不便を感じた部分だけを補っています。この段階的な調整が、結果的に無駄のないレイアウトにつながっています。

6畳レイアウト女子縦長で後悔しないまとめ
- ✅ 6畳の部屋は必ず縦長ではないが賃貸では縦長が多い
- ✅ 縦長6畳は玄関から窓まで一直線で奥行きが強調されやすい
- ✅ 縦長は視線と動線が直線化し圧迫感を感じやすい
- ✅ 家具の高さが視界を遮ると狭さが急に増す
- ✅ 横幅不足で家具サイズの選択肢がシビアになりやすい
- ✅ ワンルームは生活感が視界に入りやすく隠す工夫が要る
- ✅ 1Kは扉で区切れるがドアや収納の干渉確認が重要である
- ✅ ダサ見えはセンスより配置ミスの連鎖で起こりやすい
- ✅ NG例は家具過多・ベッド過大・通路不足・収納露出・色の散り・視線遮断である
- ✅ 床を見せる・高さを揃える・色数を絞ることが基礎である
- ✅ 広く見せるには床と視線の抜けを同時に作るのが要点である
- ✅ 家具は壁沿いにまとめ中央に余白を残す配置が強い
- ✅ 通路は最低60cmを目安に確保するのが安全である
- ✅ 収納は奥行きを抑え脚付きやベッド下で床面を確保する
- ✅ 図面寸法だけでなく椅子を引く動作や扉開閉まで想定する
6畳レイアウト女子縦長で後悔しないためには、「狭さを前提に考える」ことが何より重要である。広く使おうと無理をすると、かえって生活しにくくなりやすい。
縦長の6畳では、家具選び・配置・余白の3点が結果を左右する。特にベッドサイズと家具の数は、日々の快適さに直結する要素である。
最初から完成形を目指すより、最低限の家具で暮らしながら調整していく方が失敗は少ない。必要なものを後から足すことで、空間に合った判断がしやすくなる。
部屋づくりに唯一の正解はないが、6畳縦長の特性を理解していれば大きな後悔は避けられる。まずは寸法を測り、家具を減らすところから始めてみるとよい。
